فروشگاه طبقاتی GINZA

1400

  • مساحت:  3306 متر مربع
  • سال:  2017
  • عکس: ناکاسا و همکاران
  • تولید کنندگان: نیپوون پینت،راک پینت ،صنایع شیمیایی واشین
  • ساخت و ساز: اوکامورا کورپورتیشن ، شرکت بی پی ای  
  • همکاری:  دفتر طراحی هیرومورا
  • معمار مسئول:  نا ناگازاکا
  • تیم پروژه:  آریوسوکه یاماماتو ،متیو دارکورت،یویی متسوشیتا
  • شهر : میناتوکو
  • کشور : ژاپن

ما یک پرچمدار جدید Ginza برای LOFT، یک فروشگاه ویژه کالاهای خانگی طراحی کردیم. هدف ما این بود که فضاهای داخلی را طراحی کنیم که در آن مشتری ها می خواهند مدت طولانی در آن بمانند و به طور کامل گشت بزنند. این فروشگاه از طبقات سوم تا ششم در یک ساختمان اشغال می کند و هر طبقه دارای کالاهای مختلف است.

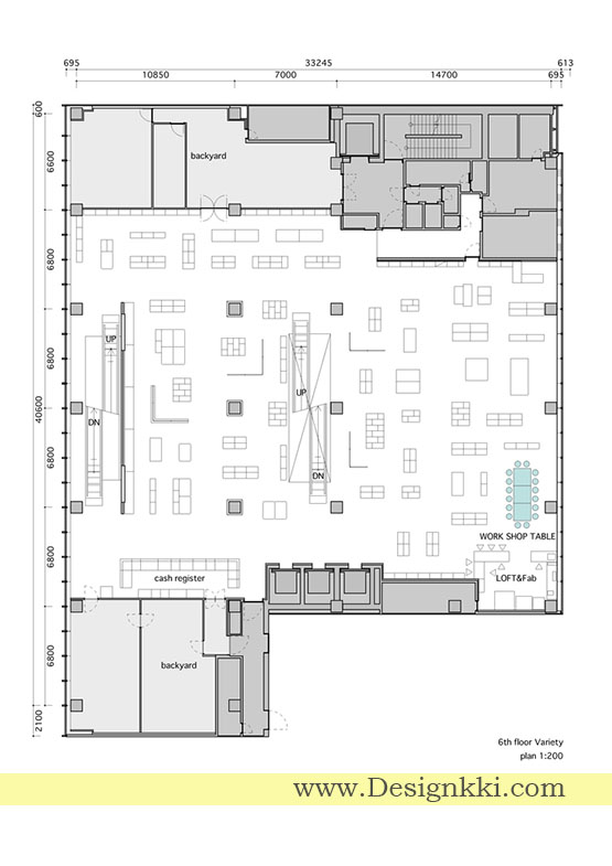
هر طبقه مساحت تقریبی 990 متر مربع دارد و پله برقی در مرکز این فضای بزرگ قرار دارد. از آنجا که اگر قرار بود از طرح اصلی به همان شکلی استفاده شود، عمق فضاهای فروش بسیار زیاد خواهد بود، طراحی ما با مکان یابی یک \”جاده کمربندی\” بزرگ یا گردش مشتری اصلی در اطراف پله برقی شروع شد و مناطق فروش را در دو طرف گردش تا حد ممکن با عمق مکانی برابر. مکانهایی که مردم در آن جمع می شوند، مانند مناطق صندوق های نقدی و آزمایشگاه ها .

این مناطق برای جلب توجه مردم به روش های منحصر به فردی طراحی شده اند و برخی از آزمایشگاه ها با استفاده از چاپ 3 بعدی توسط معماران DUS از هلند طراحی و ساخته شده اند. از مواد و اشکال مختلفی برای ساخت قفسه های نمایشگر با توجه به انواع کالاهای اداره شده در هر طبقه استفاده می شود تا مشتریان بتوانند از تفاوت بین همه طبقات و همچنین کل توالی سفر لذت ببرند.

طبقه 3 شامل قفسه های صفحه نمایش منحنی شکل است که در طرح متحدالمرکز قرار گرفته اند. طبقه 4 مجهز به قفسه های صفحه نمایش شکل جعبه ای متشکل از ترکیبی از جعبه های چوبی سفید رنگ و جعبه های چوبی lauan است که در امتداد محور 45 درجه گذاشته شده است. طبقه 5 از قفسه های فولادی تشکیل شده است که در حالت افراطی عملکردی دارند اما در عین حال ساده هستند. طبقه 6 یک طرح کف انعطاف پذیر دارد که از ترکیبی از جعبه و پالت تشکیل شده است. محیط فروشگاه با طیف گسترده ای از ویژگی ها طراحی و اجرا شده است.

بلاگ های دیگر