مرکز حیدر علی اف

1400

  • معماران: زاها حدید
  • مساحت: 101801 متر مربع
  • سال: 2013
  • عکسها:  ایوان بان، هافتون کرو ، هلنه بینت
  • سازندگان: میکودام، ویرکانت،آته لیر، کوسویک پارکت،ای کیزلر،لیندنر، پنترون، سوپرما،زامتوبل، بریمات

به عنوان بخشی از اتحاد جماهیر شوروی سابق، شهرسازی و معماری باکو، پایتخت آذربایجان در سواحل غربی دریای خزر، به شدت تحت تأثیر برنامه ریزی های آن دوران قرار گرفت.از زمان استقلال خود در سال 1991، آذربایجان سرمایه گذاری زیادی در نوسازی و توسعه زیرساخت ها و معماری باکو انجام داده است و از میراث مدرنیسم هنجاری شوروی فاصله گرفته است.

معماران زاها حدید در پی یک مسابقه در سال 2007 به عنوان معماران طراحی مرکز حیدر علی اف منصوب شدند. این مرکز، برای تبدیل شدن به ساختمان اصلی برنامه های فرهنگی کشور، از معماری سخت و غالباً برجسته شوروی که در باکو بسیار رایج است، جدا می شود و درعوض ابراز حساسیتهای فرهنگ آذری و خوش بینی ملتی که به آینده می نگرد.

مفهوم طراحی

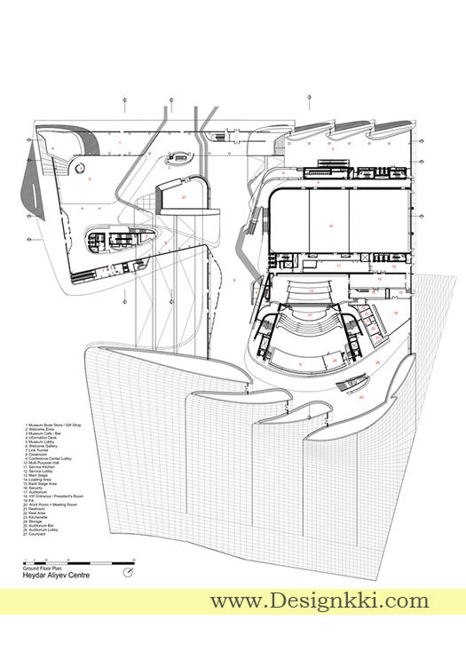
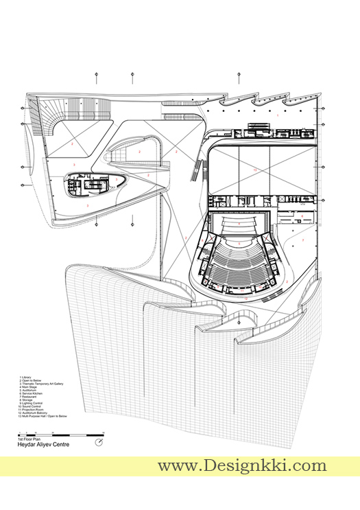
طراحی مرکز حیدر علی اف یک رابطه مداوم و روان بین میدان اطراف آن و فضای داخلی ساختمان ایجاد می کند. میدان، به عنوان سطح زمین ؛ به عنوان بخشی از بافت شهری باکو، که برای همه قابل دسترسی است، افزایش می یابد تا فضای داخلی به همان اندازه عمومی را در بر بگیرد و توالی فضاهای رویدادی را به جشن جمعی فرهنگ آذری معاصر و سنتی اختصاص دهد. سازندهای مفصلی مانند لرزش، انشعاب، چین خوردگی و انعطاف پذیری این سطح میدان را به منظره ای معماری تبدیل می کنند که بسیاری از عملکردها را برای استقبال، در آغوش گرفتن و هدایت بازدید کنندگان از طریق سطوح مختلف داخلی انجام می دهد. با این حرکت، ساختمان تمایز متعارف بین شی معماری و منظر شهری، پاکت ساختمان و میدان شهری، شکل و زمین، فضای داخلی و خارجی را محو می کند.

سیالیت در معماری برای این منطقه چیز جدیدی نیست. در معماری اسلامی، ردیف ها، شبکه ها یا دنباله هایی از ستون ها مانند درختان در جنگل به بی نهایت سرازیر می شوند و فضای غیر سلسله مراتبی را ایجاد می کنند. الگوهای پیوسته خوشنویسی و تزئینی از فرش به دیوار، دیوار به سقف، سقف به گنبد جریان می یابد، روابط بی نظیری ایجاد می کند و تمایزهای مبهمی بین عناصر معماری و زمینی که در آن زندگی می کنند، محو می شود. هدف ما این بود که با این درک تاریخی از معماری ارتباط برقرار کنیم، نه با استفاده از تقلید یا پایبندی محدود به شمایل نگاری گذشته، بلکه بیشتر با توسعه یک تفسیر کاملاً معاصر، منعکس کننده درک دقیق تر. با پاسخ به قطره مطلوب توپوگرافی که در گذشته سایت را به دو قسمت تقسیم می کرد، این پروژه منظره ای کاملاً مرتب را معرفی می کند که اتصالات و مسیرهای جایگزین بین میدان عمومی، ساختمان و زیرزمین را ایجاد می کند. این راه حل از حفاری اضافی و دفن زباله جلوگیری می کند و با موفقیت یک نقطه ضعف اولیه سایت را به یک ویژگی اصلی طراحی تبدیل می کند.

هندسه، ساختار، مادهیکی از مهمترین و در عین حال چالش برانگیزترین عناصر پروژه، توسعه معماری پوست ساختمان بود. جاه طلبی ما برای دستیابی به سطحی چنان پیوسته که به نظر همگن می رسد، نیاز به طیف وسیعی از عملکردهای مختلف دارد، منطق ساخت و ساز و سیستم های فنی باید با هم جمع شده و در پوشش ساختمان ادغام شوند. محاسبات پیشرفته امکان کنترل مداوم و ارتباط این پیچیدگی ها را در بین شرکت کنندگان بیشمار پروژه فراهم می آورد.

هندسه، ساختار، مادهیکی از مهمترین و در عین حال چالش برانگیزترین عناصر پروژه، توسعه معماری پوست ساختمان بود. جاه طلبی ما برای دستیابی به سطحی چنان پیوسته که به نظر همگن می رسد، نیاز به طیف وسیعی از عملکردهای مختلف دارد، منطق ساخت و ساز و سیستم های فنی باید با هم جمع شده و در پوشش ساختمان ادغام شوند. محاسبات پیشرفته امکان کنترل مداوم و ارتباط این پیچیدگی ها را در بین شرکت کنندگان بیشمار پروژه فراهم می آورد.

سیستم اسپیس فریم امکان ساخت یک ساختار فرم آزاد را فراهم کرده و باعث صرفه جویی در وقت قابل توجهی در کل مراحل ساخت می شود، در حالی که زیرسازی برای ترکیب یک رابطه انعطاف پذیر بین شبکه سفت و سخت قاب فضایی و درزهای روکش خارجی بیرونی تشکیل شده است. این درزها از فرآیند منطقی سازی هندسه، کاربرد و زیبایی شناسی پیچیده پروژه حاصل شده اند. بتن مسلح با الیاف شیشه (GFRC) و پلی استر تقویت شده با الیاف شیشه (GFRP) به عنوان مواد روکش ایده آل انتخاب شدند، زیرا در عین حال پاسخگویی به تقاضاهای عملکردی بسیار متفاوت مربوط به شرایط مختلف پلاسا، مناطق انتقالی، قابلیت انعطاف پذیری قدرتمند طراحی ساختمان را فراهم می کنند .

در این ترکیب معماری، اگر سطح موسیقی باشد، درزهای بین صفحات ریتم هستند. مطالعات زیادی در مورد هندسه سطح برای منطقی سازی پانلها با حفظ تداوم در کل ساختمان و منظر انجام شده است. درزها درک بیشتری از مقیاس پروژه را ارتقا می دهند. آنها بر تحول مداوم و حرکت ضمنی هندسه سیال آن تأکید می کنند، و یک راه حل عملی برای مسائل ساخت و ساز عملی مانند ساخت، حمل و نقل، حمل و نقل و مونتاژ ارائه می دهند. و پاسخگویی به نگرانی های فنی مانند سازگاری حرکت در اثر انحراف، بارهای خارجی، تغییر دما، فعالیت لرزه ای و بارگذاری باد.

برای تأکید بر ارتباط مداوم بین نمای خارجی و داخلی ساختمان، نورپردازی مرکز حیدر علی اف با دقت زیادی مورد توجه قرار گرفته است. استراتژی طراحی نور، قرائت شبانه روز ساختمان را از هم متمایز می کند. در طول روز، حجم ساختمان نور را منعکس می کند، به طور مداوم ظاهر مرکز را با توجه به زمان روز و چشم انداز تغییر می دهد. استفاده از شیشه نیمه بازتابنده نگاه های دلچسبی را در درون ایجاد می کند، بدون اینکه مسیر سیال فضاهای داخل را آشکار کند، کنجکاوی را برمی انگیزد. در شب، این شخصیت به تدریج با استفاده از روشنایی که از داخل به سطوح خارجی شسته می شود، تغییر شکل می دهد و ترکیب رسمی را نشان می دهد تا محتوای آن را نشان دهد و سیالیت بین داخلی و خارجی را حفظ می کند.

همانند سایر کارهای ما، طراحی مرکز حیدر علی اف از تحقیقات و تحقیقات ما درباره توپوگرافی سایت و نقش مرکز در فضای فرهنگی گسترده تر، شکل گرفت. با استفاده از این روابط مفصل، طراحی در این زمینه گسترش فرصت های فرهنگی آینده برای ملت. تعبیه می شود. 

بلاگ های دیگر