Odunpazari Modern Art Museum

2021

  • Architects: Kengo Kuma & Associates
  • Area:  3582 m²
  • Year:  2019
  • Photographs:  NAARO, Batuhan Keskiner, Kemal Seçkin
  • Client : Polimeks  Holdings, INC.
  • Consultants : Structural Engineer: SIGMA
  • Facade Engineer : Ateknik Structural Design
  • Mechanical Engineer:TEMA Engineering and Consulting Trade Ltd.
  • General Contractor :Polimeks Holdings, INC.
  • Partner In Charge:Yuki Ikeguchi
  • Project Architect:Yasemin Sahiner
  • Team :Man Wai Yiu, Anteo Taro Sanada
  • Country :Turkey

Odunpazari Modern Art Museum is to exhibit the owner’s collection of Turkish modern art. The Museum is planned in the city of Eskisehir where the owner was born and raised. The project is to realize the owner’s ambition to promote Turkish art and to make a cultural contribution to the city of Eskisehir. Eskisehir is known as a university town where the young population is large and the city has a lively and active atmosphere.

The site is in the area called Odunpazari. It is situated at the threshold of the newly developed urban area and small scale townscape of traditional Ottoman wooden houses. These wooden houses, with cantilevered volume at the upper level, were built in lines along the meandering small streets that make the streetscape and walk though experience quite unique and unexpected.

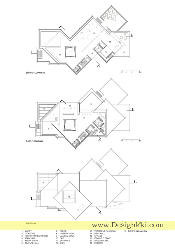
We aim to reflect this streetscape quality into the new architectural design of the museum that stands on the urban scale. Our design strategy is to make the volume in aggregation; stacking small boxes to create the urban scale architecture. Stacked boxes at the street level are read in the scale of surrounding houses and it grows taller towards the center of the museum to stands in the urbanscape that announces itself as a new cultural landmark of the area.

The stacked and interlocked boxes are designed in various sizes to create diverse scales of exhibition space inside. Boxes at the ground level offer opportunities for large scale artworks and installation. The boxes get smaller at upper levels to exhibit smaller, intimate scale artworks. The central atrium, composed of timber blocks, connects each level to let the natural light through the skylight above.

The name of this area “Odunpazari” means “wood market” in Turkish. The exterior envelope of the museum is composed of timber in full extent signifying the history and memory of the place that used to function as market in trading wood.

related blog